Отопительный котел Куппер ПРАКТИК-16 В

Артикул: 1878
Нет в наличии
Отопительный котел Куппер ПРАКТИК-16 В
31470 руб.
Артикул: 1878
Нет в наличии

.

Покупателю скидка на дымоход и сопутствующие товары.

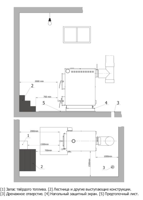
«Куппер ПРАКТИК 16 В» - экономичный надежный твердотопливный отопительный котел для отопления жилых домов и других помещений площадью от 90 до 160 м² с чугунной варочной поверхностью.

В базовую комплектацию котла Куппер Практик входит: кочерга, шуровка, термометр, поворотный шибер.

Котел оснащен механической регулировкой режимов работы:

- отопление

- отопление и приготовление пищи


.

Покупателю скидка на дымоход и сопутствующие товары.

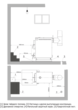
«Куппер ПРАКТИК 16 В» - экономичный надежный твердотопливный отопительный котел для отопления жилых домов и других помещений площадью от 90 до 160 м² с чугунной варочной поверхностью.

В базовую комплектацию котла Куппер Практик входит: кочерга, шуровка, термометр, поворотный шибер.

Котел оснащен механической регулировкой режимов работы:

- отопление

- отопление и приготовление пищи