Артикул: 714
Cрок поставки
: 8 марта
30000 руб.
32970 руб.
Покупателю котла скидка на дымоход и сопутствующие товары.
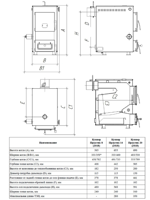
Котел Практик 8 предназначен для установки в жилых домах площадью до 80 м² и может работать как в закрытых, так и в открытых системах отопления.
Экономия бюджета
«Куппер ПРАКТИК» - экономичная линейка надежных твердотопливных отопительных котлов для отопления жилых домов и других помещений площадью до 200 м².
Длительность горения до 5 часов на одной закладке угля
Универсальность
Котел универсален и может работать как в закрытых, так и в открытых системах отопления с принудительной циркуляцией теплоносителя. Кроме того, котлы могут использоваться как самостоятельный источник тепловой энергии в качестве дополнения к существующим системам отопления с газовыми, жидкотопливными или электрическими котлами.
:format(png)/aa94e1f6551b837.ru.s.siteapi.org/img/f2f2e1dd96da7970e2ada7b00e1f2582d764c123.jpg)